3523 Vandora, Fayetteville, NC
Buy: $67,777
+ $445/lot/mo
Rent: $1,000/mo
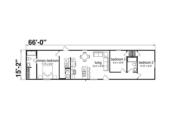
2025 • 66'x16' • 1056/sf • 3 bed(s) • 2 bath
Contact:
Office Location:
1907 Boxwood Ln
Fayetteville, NC 28311
Hours:
M-F: 8:30AM-5:30PM
Sat: Closed
Sun: Closed
Amenities
This great home at comes with a valuable set of amenities designed to enhance your lifestyle and help build connections between our residents. Amenities like at seek to create a welcoming environment and a community you're proud to call home, not just a place to live.
About
Embrace Cozy Living
Welcome to your dream home in the heart of Lakeside NC (GCI), here in Fayetteville, North Carolina. Built in 2025, this 1056 sq. ft. home features 3 bedrooms and 2.00 bathrooms, and is move-in ready. Submit an application today! Living in Lakeside, an all-age manufactured home community, offers numerous benefits for residents of all ages. Manufactured homes, like those found in Lakeside, often provide more space and privacy compared to apartments, making them ideal for families and individuals alike. Lakeside, NC, is just the beginning of the adventure, as it is situated in Fayetteville, NC, a city with plenty of attractions and activities to enjoy. Fayetteville offers a variety of popular things to do for residents of all ages. Outdoor enthusiasts can explore the scenic trails at the Cape Fear River Trail or enjoy a day of picnicking and fishing at Lake Rim Park.
Related Homes (1)
1943 Boxwood, Fayetteville, NC
$69,777 + $445/lot/mo
2025 • 76'x14' • 1064/sf • 3 bed(s) • 2 bath

