2732 Elmer Ct, Fall Creek, WI
$69,500 + $527/lot/mo
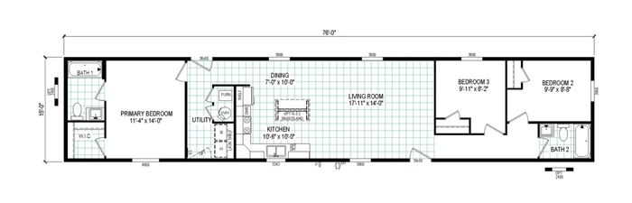
2026 • 76'x16' • 1216/sf • 3 bed(s) • 2 bath
Contact:
Office Location:
2950 N Elco Rd.
Fall Creek, WI 54742
Hours:
M-F: 7:30AM-4:30PM
Sat: Closed
Sun: Closed
Amenities
This great home at comes with a valuable set of amenities designed to enhance your lifestyle and help build connections between our residents. Amenities like Basketball Court at seek to create a welcoming environment and a community you're proud to call home, not just a place to live.
About
Embrace Cozy Living
Welcome to your dream home in the heart of Countryside Estates WI, here in Fall Creek, Wisconsin. Built in 2026, this 1216 sq. ft. home features 3 bedrooms and 2.00 bathrooms, and is move-in ready. Submit an application today! Welcome to Countryside Estates, where you'll find a cozy manufactured housing community community that's perfect for everyone! Our affordable manufactured homes offer modern comforts without breaking the bank, making homeownership a breeze. With low upkeep and energy-saving features, these homes make life simpler, giving you more time to enjoy our clubhouse and other amenities. Explore the charming town of Fall Creek, Wisconsin, where there's plenty to see and do for everyone! Take a stroll through the scenic trails of Lake Wissota State Park, where breathtaking views and outdoor adventures await. For a taste of local flavor, swing by the Fall Creek Cheese Factory and sample some delicious Wisconsin cheese straight from the source.
Related Homes (1)
2730 N Elco Rd, Fall Creek, WI
$69,500 + $527/lot/mo
2026 • 76'x16' • 1216/sf • 3 bed(s) • 2 bath
